Stein an der Ostsee – Neubau von 10 Eigentumswohnungen

Ein Paradies für Ruhe- und Erholungsuchende - 10 Eigentumswohnungen in Stein KfW 40-Effizienzhaus

Objektnummer 440
Stadt/Ort 24235 Stein
Objektart Eigentumswohnung
Baujahr 2026
Wohnfläche 92,9-106,40 m2
Zimmer 3 und 4
Grundstücksgröße 0-406 m2
Heizungsart Zentralheizung
Befeuerung / Energieträger Luft Wärmepumpe
Energieausweistyp Bedarfsausweis
Energiekennwert 34,78 kWh/(m²a)
Energieverbrauch Warmwasser enthalten Ja
Provision 2,38%
Kaufpreis 495.000 - 555.000 €
Beschreibung
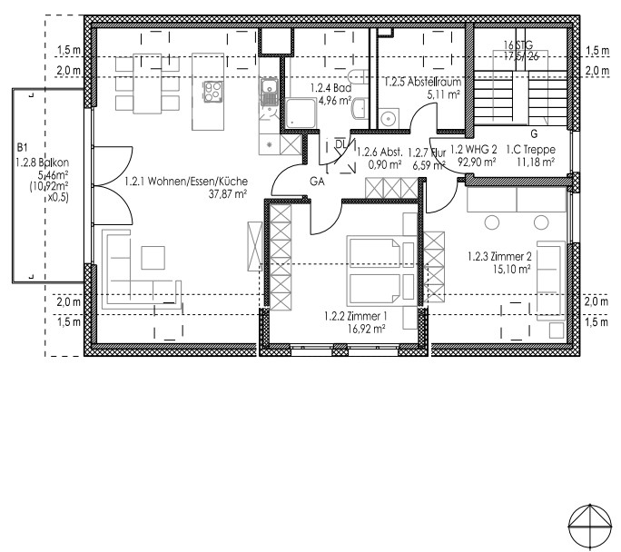
Auf dem Grundstück im Fischerweg 12 – 20, ca. 90 Meter vom Ostsee-Deich entfernt, werden in ruhiger Lage, fünf eingeschossige Häuser neu gebaut. In jedem Haus befinden sich 2 Eigentumswohnungen. Die Häuser werden nach KFW 40 Standard als klimafreundliche Gebäude, in massiver Bauweise, mit WDVS-Putz-Fassade und Satteldach erstellt. In allen Wohnungen werden Fußbodenheizungen verlegt, die je Haus durch eine Wärmepumpe beheizt werden. Die Erdgeschosswohnungen werden barrierearm errichtet Die Wohnungen verfügen über einen PKW-Carport und einen PKW-Freistellplatz (zur Wohnung 1.2. gehört nur ein PKW-Carport). Leitungen für Wallboxen werden in die Carports vorgestreckt (Wallboxen gehören nicht zur Ausstattung). Ein gemeinschaftlicher Fahrradraum mit der Möglichkeit E-Bikes zu laden wird auf dem Grundstück errichtet. Die Dachgeschosswohnungen erhalten eine PV-Solaranlage. Die Erdgeschosswohnungen erhalten einen Geräteschuppen auf ihrem Grundstück (Sondernutzungsrecht) Die hellen 4 Zimmer Erdgeschoss Wohnungen verfügen neben drei Schlafzimmern über einen großzügigen Wohn- und Essbereich, ein modernes Tageslicht-Badezimmer als Duschbad und einen Abstellraum. Die ebenfalls hell und freundlich geschnittenen 3 Zimmer Dachgeschoss Wohnungen verfügen neben zwei Schlafzimmern über einen großzügigen Wohn- und Essbereich, ein modernes Tageslicht-Badezimmer mit Dusche sowie einen Abstellraum. Viele Fensterflächen durchfluten die Wohnbereiche mit Licht und ermöglichen eine angenehme Luft-Zirkulation. Im Badezimmer werden Fliesen verlegt. Alle weiteren Räume werden mit einem modernen PVC-Designbodenbelag ausgestattet. Eine Küche ist vom Käufer*in selbst einzubringen. Neben der großzügigen Grundrissgestaltung und der hochwertigen Ausstattung, kann man auf den Balkonen oder Terrassen in optimaler Ausrichtung Meeresluft schnuppern.
Lage
Im Alleinauftrag der Steinert-Home-Projekt GmbH bieten wir an: Stein an der Ostsee Ein Paradies für Ruhe- und Erholungsuchende, Idyllisch leben am Ausläufer der Kieler Förde NEUBAU Erstbezug 2026 Fünf Eigentumswohnungen mit Terrassen und Garten, Carport und PKW-Stellplatz Fünf Eigentumswohnungen mit Balkonen, Carport und PKW-Stellplatz* In ruhiger Lage von Stein - der Strand ist zu Fuß in drei Minuten erreicht - liegt dieses Neubauprojekt im Fischerweg. Stein ist anerkannter Erholungsort und liegt direkt am Ausläufer der Kieler Förde, lange weiße Sandstrände und idyllische Weite prägen die herrliche Landschaft zwischen Meer, Steilküste, Feldern und Salzwiesen, fernab vom Verkehrslärm, in ländlich idyllischem Ambiente mit ruhigen Wohnstraßen und bunten Gärten. Das fast 800 Jahre alte Dorf Stein hat sich besonders in den letzten Jahrzehnten von einem ehemals Bauern- und Fischerdorf zu einer Gemeinde mit einem hohen Wohnwert und einer touristischen Anziehungskraft entwickelt. Stein gilt als Paradies für den Familienurlaub an der Ostsee. Spielplätze, der feine Sandstrand, der weitläufige Flachwasserbereich und die große Deichwiese bieten viel Raum für Aktivitäten. Ins tiefe Wasser führt die Steiner Mole, das Wahrzeichen von Stein. Die Dünen und der Schilfgürtel in der Steiner Bucht sind Natur pur. Am Strand entlang, durch Felder und Wiesen, können Sie die Vielfalt der Natur, zum Beispiel bei einem Besuch des Naturschutzgebietes „Bottsand“ oder der „Strandseelandschaft bei Schmoel“ entdecken. Neben Strandaktivitäten und Wassersport finden Einheimische und Urlauber viele Spazier-, Wander- und Radfahrmöglichkeiten. Am besten lässt sich die Probstei mit dem Rad auf beschilderten Themenrouten erkunden, in die auch Teile des Ostseeküsten-Radwegs integriert sind. Stein hat ein kleines Gewerbegebiet, in dem sich hauptsächlich touristisch orientierte Betriebe angesiedelt haben. Das Sportzentrum umfasst zwei Fußballplätze, Sportheim und Jugendraum sowie eine kleine Mehrzweckhalle. Außerdem ist ein Kindergarten in Stein beheimatet. Für die Kids gibt’s immer was zu erleben: Im 2,5 Hektar großen Kinderabenteuerland erwarten Euch Abenteuer an der Hängebrücke oder auf der Spieldüne mit Piratenturm. Der Ferienort Wendtorf liegt nur ca. 850 Meter vom Baugrundstück entfernt und ist ein Paradies für Segler, die „Marina Wendtorf“ gehört zu den größten Sportboothäfen Norddeutschlands und ist ein optimaler Ausgangspunkt für Tagestörns und hinreißende Segeltouren in der Ostsee.
Ausstattung
  • KFW-40 Standard / klimafreundliche Gebäude
  • Offener Wohn- und Essbereich
  • Gefliestes Tageslichtbad
  • Abstellraum mit Waschmaschinenanschluss
  • Designfußbodenbelag in Holzoptik in den Wohnräumen und im Flur
  • Fußbodenheizung in der gesamten Wohnung
  • Terrassen / Balkone in Süd- oder West-Ausrichtung
  • Außenwasserhahn für die Erdgeschoss-Wohnungen
  • Geräteschuppen für die Erdgeschoss-Wohnungen
  • 3-fach isolierverglaste Kunststoff-Fenster mit Dreh/Kipp Funktion
  • Fahrradraum zur gemeinschaftlichen Nutzung auf dem Grundstück
  • Je Wohnung ein Carport-Stellplatz mit vorgestreckter Zuleitung mit der Möglichkeit selbst eine Wallbox anzuschließen.
  • Je Wohnung ein PKW-Freistellplatz – (die Wohnung 1.1.2 erhält keinen PKW-Freistellplatz)
  • Wärmepumpe
  • Solaranlage für die Dachgeschosswohnungen
  • Wohngeld inkl. Heizkosten geschätzt auf 3,-€/m².
  • 106,40 m² ca. 320,-€/mon.
  • 92,90 m² = ca. 280,-€/mon.

Sie wünschen weitere Informationen zu diesem Objekt Nr. 440?
Fordern Sie ein ausführliches Expose´an.


PLUS Immobilien GmbH
Stohler Landstr. 14
24229 Strande

Tel.: 0431 / 54501-0
Fax: 0431 / 54501-20

oder per Mail:
info@plus-immobilien-kiel.de

Öffnungszeiten:
Mo-Do: 10-16Uhr
Fr:10-13Uhr
www.plus-immobilien-kiel.de


Warning: Undefined variable $bild9 in /home/p4jtlloq95tx/migrated_webspace/www/plus/plus-test/expose-mobil.php on line 216

Warning: Undefined variable $bild10 in /home/p4jtlloq95tx/migrated_webspace/www/plus/plus-test/expose-mobil.php on line 223

Stein an der Ostsee – Neubau von 10 Eigentumswohnungen

Objektnummer:
440
Stadt/Ort:
24235 Stein
Objektart:
Eigentumswohnung
Baujahr:
2026
Wohnfläche:
92,9-106,40 m2
Zimmer:
3 und 4
Grundstück:
0-406 m2
Heizungsart:
Zentralheizung
Energieträger:
Luft Wärmepumpe
Energieausweistyp:
Bedarfsausweis
Energiekennwert:
34,78 kWh/(m²a)
 
 
Provision
2,38
Kaufpreis:
495.000 - 555.000 €
Beschreibung:
Auf dem Grundstück im Fischerweg 12 – 20, ca. 90 Meter vom Ostsee-Deich entfernt, werden in ruhiger Lage, fünf eingeschossige Häuser neu gebaut. In jedem Haus befinden sich 2 Eigentumswohnungen. Die Häuser werden nach KFW 40 Standard als klimafreundliche Gebäude, in massiver Bauweise, mit WDVS-Putz-Fassade und Satteldach erstellt. In allen Wohnungen werden Fußbodenheizungen verlegt, die je Haus durch eine Wärmepumpe beheizt werden. Die Erdgeschosswohnungen werden barrierearm errichtet Die Wohnungen verfügen über einen PKW-Carport und einen PKW-Freistellplatz (zur Wohnung 1.2. gehört nur ein PKW-Carport). Leitungen für Wallboxen werden in die Carports vorgestreckt (Wallboxen gehören nicht zur Ausstattung). Ein gemeinschaftlicher Fahrradraum mit der Möglichkeit E-Bikes zu laden wird auf dem Grundstück errichtet. Die Dachgeschosswohnungen erhalten eine PV-Solaranlage. Die Erdgeschosswohnungen erhalten einen Geräteschuppen auf ihrem Grundstück (Sondernutzungsrecht) Die hellen 4 Zimmer Erdgeschoss Wohnungen verfügen neben drei Schlafzimmern über einen großzügigen Wohn- und Essbereich, ein modernes Tageslicht-Badezimmer als Duschbad und einen Abstellraum. Die ebenfalls hell und freundlich geschnittenen 3 Zimmer Dachgeschoss Wohnungen verfügen neben zwei Schlafzimmern über einen großzügigen Wohn- und Essbereich, ein modernes Tageslicht-Badezimmer mit Dusche sowie einen Abstellraum. Viele Fensterflächen durchfluten die Wohnbereiche mit Licht und ermöglichen eine angenehme Luft-Zirkulation. Im Badezimmer werden Fliesen verlegt. Alle weiteren Räume werden mit einem modernen PVC-Designbodenbelag ausgestattet. Eine Küche ist vom Käufer*in selbst einzubringen. Neben der großzügigen Grundrissgestaltung und der hochwertigen Ausstattung, kann man auf den Balkonen oder Terrassen in optimaler Ausrichtung Meeresluft schnuppern.
Lage:
Im Alleinauftrag der Steinert-Home-Projekt GmbH bieten wir an: Stein an der Ostsee Ein Paradies für Ruhe- und Erholungsuchende, Idyllisch leben am Ausläufer der Kieler Förde NEUBAU Erstbezug 2026 Fünf Eigentumswohnungen mit Terrassen und Garten, Carport und PKW-Stellplatz Fünf Eigentumswohnungen mit Balkonen, Carport und PKW-Stellplatz* In ruhiger Lage von Stein - der Strand ist zu Fuß in drei Minuten erreicht - liegt dieses Neubauprojekt im Fischerweg. Stein ist anerkannter Erholungsort und liegt direkt am Ausläufer der Kieler Förde, lange weiße Sandstrände und idyllische Weite prägen die herrliche Landschaft zwischen Meer, Steilküste, Feldern und Salzwiesen, fernab vom Verkehrslärm, in ländlich idyllischem Ambiente mit ruhigen Wohnstraßen und bunten Gärten. Das fast 800 Jahre alte Dorf Stein hat sich besonders in den letzten Jahrzehnten von einem ehemals Bauern- und Fischerdorf zu einer Gemeinde mit einem hohen Wohnwert und einer touristischen Anziehungskraft entwickelt. Stein gilt als Paradies für den Familienurlaub an der Ostsee. Spielplätze, der feine Sandstrand, der weitläufige Flachwasserbereich und die große Deichwiese bieten viel Raum für Aktivitäten. Ins tiefe Wasser führt die Steiner Mole, das Wahrzeichen von Stein. Die Dünen und der Schilfgürtel in der Steiner Bucht sind Natur pur. Am Strand entlang, durch Felder und Wiesen, können Sie die Vielfalt der Natur, zum Beispiel bei einem Besuch des Naturschutzgebietes „Bottsand“ oder der „Strandseelandschaft bei Schmoel“ entdecken. Neben Strandaktivitäten und Wassersport finden Einheimische und Urlauber viele Spazier-, Wander- und Radfahrmöglichkeiten. Am besten lässt sich die Probstei mit dem Rad auf beschilderten Themenrouten erkunden, in die auch Teile des Ostseeküsten-Radwegs integriert sind. Stein hat ein kleines Gewerbegebiet, in dem sich hauptsächlich touristisch orientierte Betriebe angesiedelt haben. Das Sportzentrum umfasst zwei Fußballplätze, Sportheim und Jugendraum sowie eine kleine Mehrzweckhalle. Außerdem ist ein Kindergarten in Stein beheimatet. Für die Kids gibt’s immer was zu erleben: Im 2,5 Hektar großen Kinderabenteuerland erwarten Euch Abenteuer an der Hängebrücke oder auf der Spieldüne mit Piratenturm. Der Ferienort Wendtorf liegt nur ca. 850 Meter vom Baugrundstück entfernt und ist ein Paradies für Segler, die „Marina Wendtorf“ gehört zu den größten Sportboothäfen Norddeutschlands und ist ein optimaler Ausgangspunkt für Tagestörns und hinreißende Segeltouren in der Ostsee.
Ausstattung:
  • KFW-40 Standard / klimafreundliche Gebäude
  • Offener Wohn- und Essbereich
  • Gefliestes Tageslichtbad
  • Abstellraum mit Waschmaschinenanschluss
  • Designfußbodenbelag in Holzoptik in den Wohnräumen und im Flur
  • Fußbodenheizung in der gesamten Wohnung
  • Terrassen / Balkone in Süd- oder West-Ausrichtung
  • Außenwasserhahn für die Erdgeschoss-Wohnungen
  • Geräteschuppen für die Erdgeschoss-Wohnungen
  • 3-fach isolierverglaste Kunststoff-Fenster mit Dreh/Kipp Funktion
  • Fahrradraum zur gemeinschaftlichen Nutzung auf dem Grundstück
  • Je Wohnung ein Carport-Stellplatz mit vorgestreckter Zuleitung mit der Möglichkeit selbst eine Wallbox anzuschließen.
  • Je Wohnung ein PKW-Freistellplatz – (die Wohnung 1.1.2 erhält keinen PKW-Freistellplatz)
  • Wärmepumpe
  • Solaranlage für die Dachgeschosswohnungen
  • Wohngeld inkl. Heizkosten geschätzt auf 3,-€/m².
  • 106,40 m² ca. 320,-€/mon.
  • 92,90 m² = ca. 280,-€/mon.
 

Adresse

Verkauf Bewertung Vermietung